4 / 4

当前位置: 首页 » 小区效果图 » 小区效果图 »万科城市花园-450平米-别墅-田园风格装修效果图 日期:2014-12-29    点击:2   

1
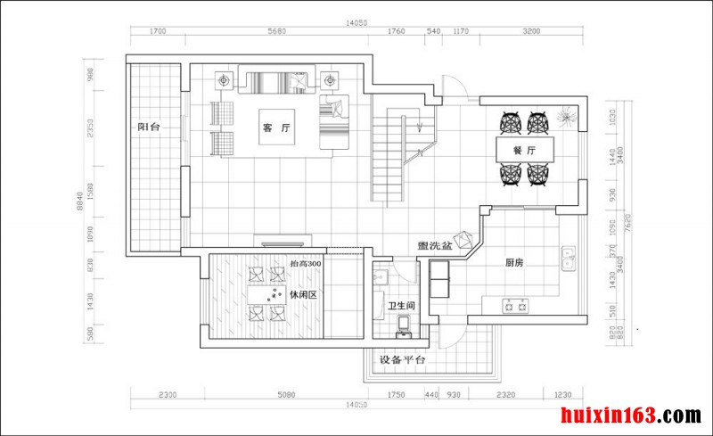
万科城市花园-450平米-别墅-田园风格装修效果图—布局图
小区效果图说明

万科城市花园位于鞍山市铁东区东南部营城子居住小区。小区地理位置优越,环境优美,附近的交通也是比较的便利的,周围还有多所学校和医院,周边的商场超市和银行也有多家,能够满足日常的生活需求。

这是一个450平米的别墅,它的装修风格属于田园风格,它的装修费用是40万元。

房间内为我们创造了一个清新淡雅的休闲生活。吊顶使用的是白色的石膏板装饰的,上面在棱角的地方做了处理,没有特别突兀的地方,吊顶的中间安装的是一个造型比较华丽大气的铁艺水晶吊灯,为吊顶上增加了一份恢弘的气势。吊顶的下面放的是一个沙发和茶几,沙发的线条柔和,优雅的造型,白色的边框为房间内增加了一种高贵的气质,上面的浮雕精致细腻,让房间内的气氛温馨。沙发后面的地方是一个钢琴房,钢琴上面的吊顶使用的是木木材,给人们一种淡雅的感觉。地面上使用的是仿古大理石瓷砖装饰的,墙面使用的是浅色壁纸装饰的,给人营造了一个安静素雅的休息环境。

更多»推荐小区效果图
 
0条 [查看全部]  相关评论